-
新宿区新宿6丁目「東新宿」駅徒歩3分

※お電話でお問い合わせのお客様は
スタッフに物件番号をお伝えください。
物件番号: 08170
- 賃料923,076円 (税込) 管理費:(賃料に含む)
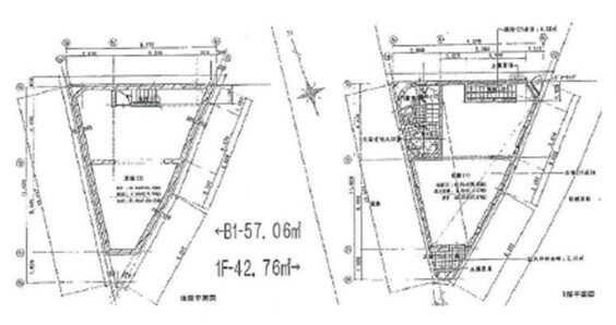
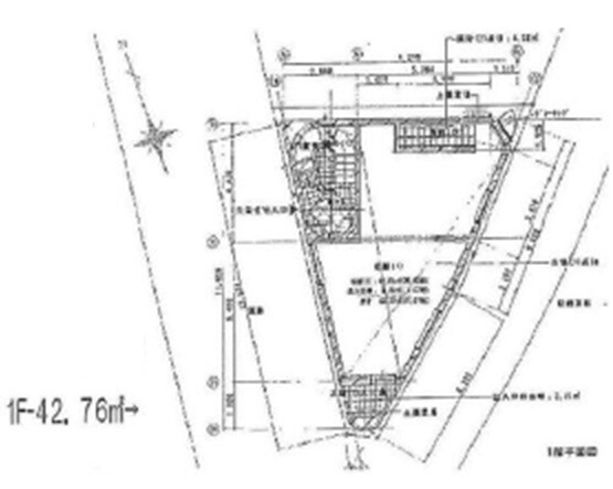
- 所在階1+B1階部分(地上5階・地下1階)
-
交通
東京メトロ副都心線「東新宿」駅徒歩3分
東京メトロ丸の内線「新宿三丁目」駅徒歩5分 - 所在地東京都新宿区新宿6丁目
保証金・敷金 / 礼金 使用部分面積 建物構造 10ヶ月・- / 2ヶ月 102.57m² RC - 担当者からのコメント
- 東京メトロ副都心線「東新宿」A3 3分 1F+B1 (合計約31坪) 何業相談可!


-

-
所在地 東京都新宿区新宿6丁目 最寄り駅 東京メトロ副都心線「東新宿」駅徒歩3分
東京メトロ丸の内線「新宿三丁目」駅徒歩5分使用部分面積 102.57m² 用途地域 - 天井高 - 構造 RC 地上5階・地下1階 所在階 1+B1階部分 築年月 2015年03月 仲介手数料 新賃料の1ヶ月分(別途消費税) 賃料 923,076円 (税込) 管理費等 管理費:(賃料に含む) 敷金・保証金 10ヶ月 礼金 2ヶ月 償却 1ヶ月 看板掲出料 相談 造作譲渡費用 なし :スケルトン 更新料 新賃料の1ヶ月分 現況 空室 引渡 相談 契約期間 普通 3年 成約状態 現在募集中 設備・条件 重飲食可 , 軽飲食可 , 美容・物販・クリニック向き , スケルトン物件 備考 ※ 賃料・管理費10%税込表記
■ 保証会社加入必須(初回時100%)
■ 火災保険加入必須
■ 重飲食相談可(消臭対策必須)
■ 内見の際は内装業者お連れの上ご内見をお願いします。
【弊社、設計・施工部にて内装・解体工事相談可。】 
-

※お電話でお問い合せのお客様は、スタッフに物件番号をお伝えください。物件番号: 08170












