-
千代田区神田三崎町3丁目「水道橋」駅徒歩2分

※お電話でお問い合わせのお客様は
スタッフに物件番号をお伝えください。
物件番号: 08236
- 賃料606,474円 (税込) / 管理費:29,700円 (税込)
- 所在階1階部分(地上8階)
-
交通
JR中央・総武線「水道橋」駅徒歩2分
都営三田線「水道橋」駅徒歩4分 - 所在地東京都千代田区神田三崎町3丁目
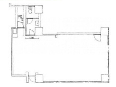
保証金・敷金 / 礼金 使用部分面積 建物構造 8ヶ月・- / 1ヶ月 67.65m² 鉄骨造 - 担当者からのコメント
- JR総武中央線「水道橋」西口 2分 1F (約20坪) 軽飲食相談可!

-

-
所在地 東京都千代田区神田三崎町3丁目 最寄り駅 JR中央・総武線「水道橋」駅徒歩2分
都営三田線「水道橋」駅徒歩4分使用部分面積 67.65m² 用途地域 - 天井高 - 構造 鉄骨造 地上8階 所在階 1階部分 築年月 1985年02月 仲介手数料 新賃料の1ヶ月分(別途消費税) 賃料 606,474円 (税込) 管理費等 管理費:29,700円 (税込) 敷金・保証金 8ヶ月 礼金 1ヶ月 償却 1ヶ月 看板掲出料 相談 造作譲渡費用 なし :スケルトン 更新料 新賃料の1ヶ月分 現況 空室 引渡 相談 契約期間 普通 2年 成約状態 現在募集中 設備・条件 軽飲食可 , 美容・物販・クリニック向き , スケルトン物件 備考 ※ 賃料・管理費10%税込表記
■ 保証会社加入必須(初回時100%)
■ 火災保険加入必須
■ 重飲食不可
■ 内見の際は内装業者お連れの上ご内見をお願いします。
【弊社、設計・施工部にて内装・解体工事相談可。】 
-

※お電話でお問い合せのお客様は、スタッフに物件番号をお伝えください。物件番号: 08236














