-
渋谷区神宮前3丁目「明治神宮前」駅徒歩7分

※お電話でお問い合わせのお客様は
スタッフに物件番号をお伝えください。
物件番号: 08254
- 賃料660,000円 (税込)
- 所在階1+3階部分(地上5階)
-
交通
東京メトロ千代田線「明治神宮前」駅徒歩7分
東京メトロ銀座線「表参道」駅徒歩9分 - 所在地東京都渋谷区神宮前3丁目
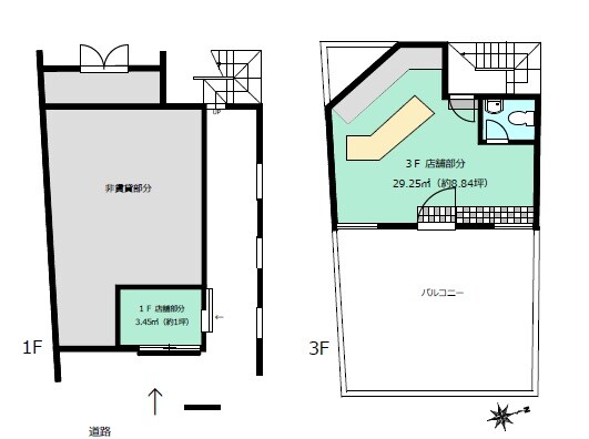
保証金・敷金 / 礼金 使用部分面積 建物構造 -・180万円 / 1ヶ月 32.7m² 鉄骨造 - 担当者からのコメント
- 東京メトロ千代田線「明治神宮前」7分 1F+3F (合計約9坪) カフェ居抜!



-
所在地 東京都渋谷区神宮前3丁目 最寄り駅 東京メトロ千代田線「明治神宮前」駅徒歩7分
東京メトロ銀座線「表参道」駅徒歩9分使用部分面積 32.7m² 用途地域 - 天井高 - 構造 鉄骨造 地上5階 所在階 1+3階部分 築年月 2024年07月 仲介手数料 新賃料の1ヶ月分(別途消費税) 賃料 660,000円 (税込) 管理費等 管理費:なし 敷金・保証金 180万円 礼金 1ヶ月 償却 20% 看板掲出料 相談 造作譲渡費用 無償:カフェ居抜 更新料 再契約 新賃料1ヶ月分 現況 営業中 引渡 相談 契約期間 定借2年 成約状態 現在募集中 設備・条件 軽飲食可 , 居抜き物件 備考 ※ 賃料10%税込表記
■ 保証会社加入必須(初回時100%)
■ 火災保険加入必須 ■ 重飲食不可
■ カフェ居抜(造作費無償)■ 入居:2026年2月中旬
■ 再契約相談可(新賃料の1ヶ月分)
■ 1F:3.45m²/3F:29.25m²/合計32.7m²
■ 内見の際は内装業者お連れの上ご内見をお願いします。
【弊社、設計・施工部にて内装・解体工事相談可。】 
-

※お電話でお問い合せのお客様は、スタッフに物件番号をお伝えください。物件番号: 08254













