-
渋谷区道玄坂1丁目「渋谷」駅徒歩4分

※お電話でお問い合わせのお客様は
スタッフに物件番号をお伝えください。
物件番号: 08261
- 賃料495,000円 (税込) 管理費:(賃料に含む)
- 所在階1階部分(地上4階・地下1階)
-
交通
JR山手線「渋谷」駅徒歩4分
東急東横線「渋谷」駅徒歩4分 - 所在地東京都渋谷区道玄坂1丁目
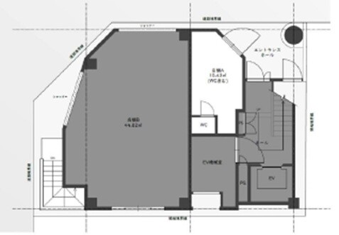
保証金・敷金 / 礼金 使用部分面積 建物構造 3ヶ月・- / - 10.43m² 鉄骨造 - 担当者からのコメント
- JR山手線「渋谷」4分 1F 店舗A (約3坪) 重飲食相談可!


-

-
所在地 東京都渋谷区道玄坂1丁目 最寄り駅 JR山手線「渋谷」駅徒歩4分
東急東横線「渋谷」駅徒歩4分使用部分面積 10.43m² 用途地域 - 天井高 - 構造 鉄骨造 地上4階・地下1階 所在階 1階部分 築年月 1986年04月 仲介手数料 新賃料の1ヶ月分(別途消費税) 賃料 495,000円 (税込) 管理費等 管理費:(賃料に含む) 敷金・保証金 3ヶ月 礼金 - 償却 無ヶ月 看板掲出料 相談 造作譲渡費用 なし :一部残置物有 更新料 新賃料の1ヶ月分 現況 空室 引渡 相談 契約期間 定借3年 成約状態 現在募集中 設備・条件 重飲食可 , 軽飲食可 , 美容・物販・クリニック向き , スケルトン物件 備考 ※ 賃料10%税込表記
■ 保証会社加入必須(初回時100%)
■ 火災保険加入必須
■ 重飲食相談可(消臭対策必須)
■ 再契約相談可(新賃料の1ヶ月分)
■ 内見の際は内装業者お連れの上ご内見をお願いします。
【弊社、設計・施工部にて内装・解体工事相談可。】 
-

※お電話でお問い合せのお客様は、スタッフに物件番号をお伝えください。物件番号: 08261









