-
千代田区麹町4丁目「麹町」駅徒歩2分

※お電話でお問い合わせのお客様は
スタッフに物件番号をお伝えください。
物件番号: 08290
- 賃料536,400円 (税込) 管理費:(賃料に含む)
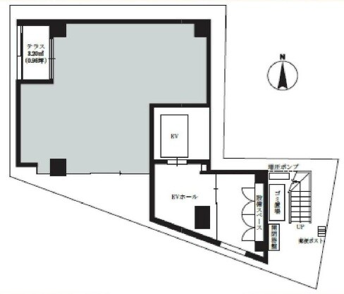
- 所在階1階部分(地上13階)
-
交通
東京メトロ有楽町線「麹町」駅徒歩2分
東京メトロ半蔵門線「半蔵門」駅徒歩7分 - 所在地東京都千代田区麹町4丁目
保証金・敷金 / 礼金 使用部分面積 建物構造 -・10ヶ月 / 1ヶ月 39.42m² 鉄骨造 - 担当者からのコメント
- 東京メトロ有楽町線「麹町」4番出口 2分 1F (約11坪) 軽飲食相談可!


-

-
所在地 東京都千代田区麹町4丁目 最寄り駅 東京メトロ有楽町線「麹町」駅徒歩2分
東京メトロ半蔵門線「半蔵門」駅徒歩7分使用部分面積 39.42m² 用途地域 - 天井高 - 構造 鉄骨造 地上13階 所在階 1階部分 築年月 2024年03月 仲介手数料 新賃料の1ヶ月分(別途消費税) 賃料 536,400円 (税込) 管理費等 管理費:(賃料に含む) 敷金・保証金 10ヶ月 礼金 1ヶ月 償却 無ヶ月 看板掲出料 相談 造作譲渡費用 なし :スケルトン 更新料 新賃料の1ヶ月分 現況 空室 引渡 相談 契約期間 普通 2年 成約状態 現在募集中 設備・条件 軽飲食可 , 美容・物販・クリニック向き , スケルトン物件 備考 ※ 賃料10%税込表記
■ 保証会社加入必須(初回時100%)
■ 火災保険加入必須
■ 重飲食不可 ■ 2026/8/13 入居可
■ 内装監理費:坪19800円(税込)
■ 内見の際は工事業者お連れの上ご内見をお願いします。
弊社、設計・施工部にて内装・解体工事相談可。 
-

※お電話でお問い合せのお客様は、スタッフに物件番号をお伝えください。物件番号: 08290











