-
港区南青山6丁目「表参道」駅徒歩10分

※お電話でお問い合わせのお客様は
スタッフに物件番号をお伝えください。
物件番号: 08309
- 賃料470,000円 (税込) 管理費:(賃料に含む)
- 所在階7階部分(地上10階)
- 交通 東京メトロ銀座線「表参道」駅徒歩10分
- 所在地東京都港区南青山6丁目
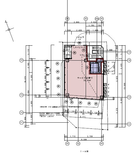
保証金・敷金 / 礼金 使用部分面積 建物構造 6ヶ月・- / 1ヶ月 39.13m² 鉄骨造 - 担当者からのコメント
- 東京メトロ銀座線「表参道」B1 10分 7F (約11坪) 重飲食も相談可!



-
所在地 東京都港区南青山6丁目 最寄り駅 東京メトロ銀座線「表参道」駅徒歩10分 使用部分面積 39.13m² 用途地域 - 天井高 - 構造 鉄骨造 地上10階 所在階 7階部分 築年月 2025年12月 仲介手数料 新賃料の1ヶ月分(別途消費税) 賃料 470,000円 (税込) 管理費等 管理費:(賃料に含む) 敷金・保証金 6ヶ月 礼金 1ヶ月 償却 1ヶ月 看板掲出料 相談 造作譲渡費用 なし :スケルトン 更新料 再契約料 新賃料1ヵ月 現況 空室 引渡 相談 契約期間 定借 5年 成約状態 現在募集中 設備・条件 24時間使用 , 電気 , 水道 , 重飲食可 , 軽飲食可 , 美容・物販・クリニック向き , スケルトン物件 備考 ※ 賃料10%税込表記
■ 保証会社加入必須(初回時100%)
■ 火災保険加入必須 ■ 再契約相談可
■ 重飲食相談可(消臭対策必須) ■ 24H可
■ 電灯10KVA/電力12KW/ガス6号/水道25㎜
■ 内見の際は工事業者お連れの上ご内見をお願いします。
弊社、設計・施工部にて内装・解体工事相談可。 
-

※お電話でお問い合せのお客様は、スタッフに物件番号をお伝えください。物件番号: 08309













