平面図・レイアウト図
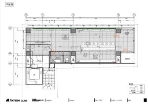
❖【平面図(レイアウト図)】 建物(貸室内)を真上から見た図になり、各所寸法が入っている図面です。 【寸法の入った平面図】平面図に記載されている寸法を元に、席数や、レイアウトを考え、「レイアウト図」を作成します。 平面図のほかに「立面図」・「断面図」・「透視図」・「等速投影図」等、様々な図面がありますが 通常、「平面図」と室内の高さがわかる「断面図」の2種類知っておくといいでしょう。 【レイアウト図】
※通常 内装工事打合せの際は、設計デザイナーはレイアウト図を「平面図」として打合せを進めます。

平面図に記載されている寸法を元に、席数や、レイアウトを考え、「レイアウト図」を作成します。
平面図のほかに「立面図」・「断面図」・「透視図」・「等速投影図」等、様々な図面がありますが
通常、「平面図」と室内の高さがわかる「断面図」の2種類知っておくといいでしょう。
【レイアウト図】
※通常 内装工事打合せの際は、設計デザイナーはレイアウト図を「平面図」として打合せを進めます。



